Căn hộ The Habitat Bình Dương là dự án cao cấp nằm ngay mặt tiền Quốc lộ 13, canh TTTM Aeon Mall Bình Dương. Quy mô tổng thể 4.1 ha, gồm 11 tòa tháp, hiện dự án đã triển khai giai đoạn 1 – bàn giao nhà 2017. Giai đoạn 2 bàn giao vào tháng 6/2020 và giai đoạn 3 gồm 6 block cao 18 tầng đã bàn giao trong năm 2025.
Dự án Habitat liền kề VSIP 1 được đầu tư và phát triển bởi liên doanh giữa Tập đoàn Singapore Sembcorp Gateway và Công ty TNHH Phát triển Vsip Bình Dương. Dự án nổi bật với không gian sống xanh, tiện nghi và cộng đồng cư dân văn minh, hiện đại theo tiêu chuẩn chất lượng cao của Singapore nên được nhiều chuyên gia nước ngoài đang làm việc ở đây lựa chọn.
DỰ ÁN THE HABITAT BÌNH DƯƠNG
CĂN HỘ LIỀN KỀ AEON MALL CANARY BÌNH DƯƠNG – GIÁ TỐT Ở NGAY
GIÁ BÁN CĂN HỘ HABITAT 3 VSIP TỪ 39 TRIỆU – 43 TRIỆU/M2
Thanh toán 30% nhận bàn giao nhà ở/khai thác cho thuê – 70% thanh toán đến năm 2027
Hotline: 0965 588 584
Email: aqland.vn@gmail.com

Sau đây, hãy cùng AQLand tìm hiểu thông tin dự án Habitat liền kề Aeon Mall Bình Dương chi tiết:
TỔNG QUAN DỰ ÁN THE HABITAT BÌNH DƯƠNG
- Tên dự án: THE HABITAT BINH DUONG
- Chủ đầu tư: CÔNG TY TNHH PHÁT TRIỂN VSIP – SEMBCORP GATEWAY – MC DEVELOPMENT (Thuộc tập đoàn Mitsubishi, Nhật Bản)
- Vị trí dự án: Số 8 Đại lộ Hữu Nghị, VSIP 1, P Bình Hòa, Tp Hồ Chí Minh
- Đơn vị vận hành: Savills
- Nhà thầu chính: CC1 (https://www.cc1.vn/2025/02/28/cc1-khang-dinh-vi-the-tong-thau-tai-du-an-the-habitat-binh-duong-giai-doan-3.html)
- Nhà thầu phần ngầm: Ricons
- Thiết kế kiến trúc & cảnh quan: BYG
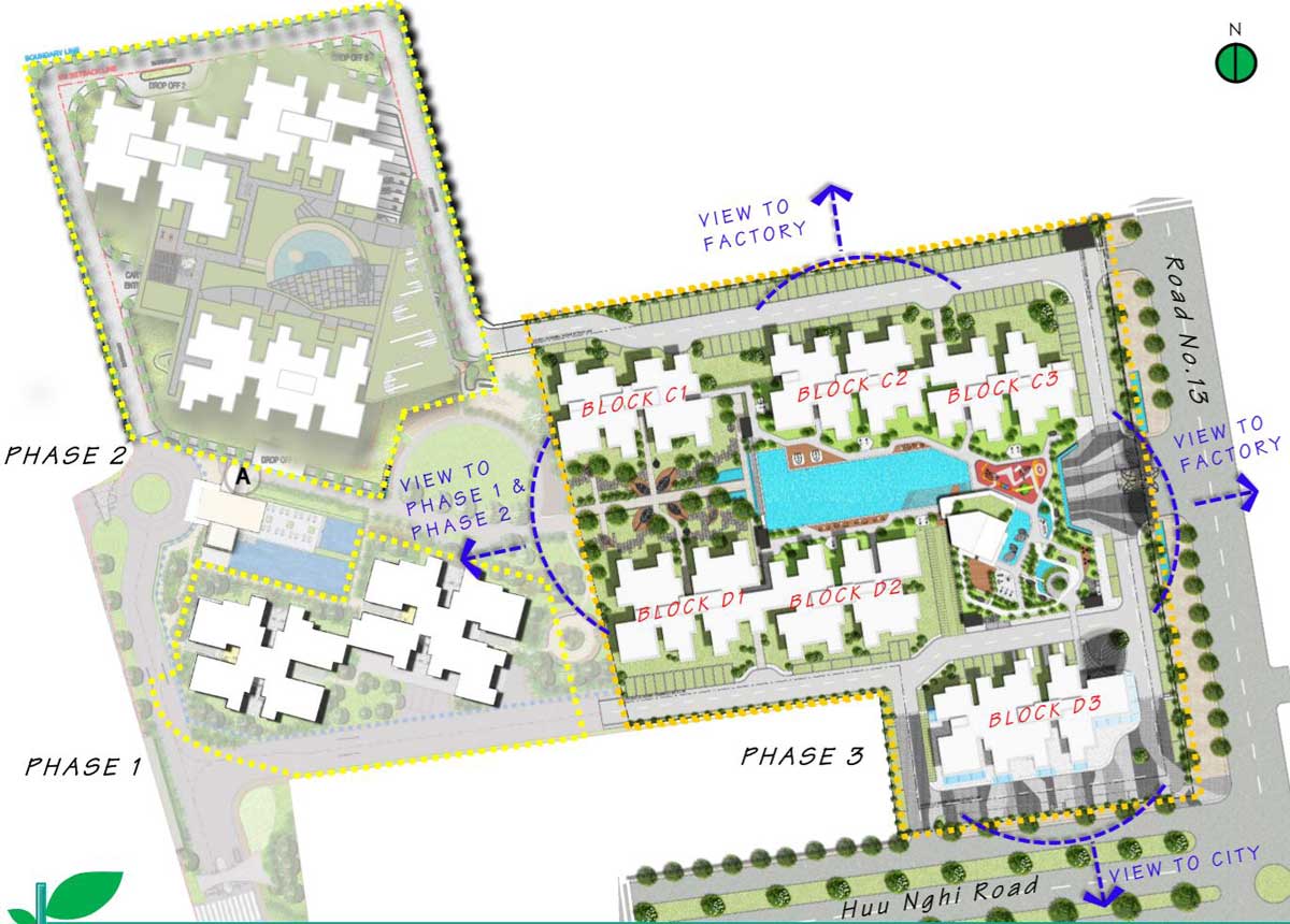
- Quy mô dự án Habitat cạnh Aeon Mall: 4.1ha, bao gồm 11 block (3 giai đoạn)
- Mật độ xây dựng: Tổng dự án 49.41%, Giai đoạn 3: 46.38%.
- Giai đoạn 1 (Đã hoàn thành 2015 – 2017): diện tích 9.939m2 – 2 tòa tháp – 267 căn hộ
- Giai đoạn 2 (Đã hoàn thành 2017 – 2019): diện tích 12.112m2 – 3 tòa tháp – 460 căn hộ
- Giai đoạn 3 (Đã bàn giao 2025): diện tích đất 1.8ha – 6 tòa tháp – 793 căn hộ, 16 – 18 tầng.
- Giai đoạn 3 Habitat Bình Dương (C1, C2, C3, D1, D2 và D3)
- Thiết kế 1 phòng ngủ: 51m2 – 55m2
- Thiết kế 2 phòng ngủ (Không bancong, có logia): 67m2 – 71m2
- Thiết kế 2 phòng ngủ (Có bancong, có logia): 79m2 – 83m2
- Thiết kế 3 phòng ngủ: 96m2 – 100m2.
- Thiết kế duplex (Trần cao 6.05m): 122m2 – 130m2.
- Tiện ích nổi bật Habitat Đại lộ Bình Dương: Hồ bơi vô cực với chiều dài 50m, hồ bơi trẻ em, khu vui chơi trẻ em ngoài trời, khu tập gym/ yoga, vườn nhiệt đới, đường dạo bộ, công viên trung tâm, trường mầm non, đồi cỏ Habitat, vườn BBQ, quảng trường trung tâm…
- Ngân hàng hỗ trợ: Vietcombank, BIDV, Public Bank, Shinhan…
- Sở hữu: Lâu dài.
- Giá bán Habitat Quốc lộ 13: từ 2 tỷ – 3.8 tỷ

CHỦ ĐẦU TƯ DỰ ÁN THE HABITAT VSIP 1 (*)
Dự án The Habitat Binh Duong được phát triển bởi Công ty TNHH Phát triển VSIP – Sembcorp Gate-way, hợp tác bởi ba đơn vị bao gồm: VSIP, Tập đoàn Sembcorp Properties (Trực thuộc Sembcorp Industries, Singapore) và MC Development Asia (Trực thuộc Tập đoàn Mitsubishi, Nhật Bản).
Công ty Liên doanh VSIP là nhà phát triển các dự án phức hợp hàng đầu tại Việt Nam. Các dự án nhà ở tập trung vào thiết kế hiện đại, phù hợp với những gia đình trẻ Việt Nam, năng đồng; đảm bảo một cuộc sống chất lượng, an toàn và tiện nghi.
Khu đô thị Habitat Bình Dương được phát triển từ 2015 đến nay, đã tạo một cộng đồng sinh sống bền vững, dòng tiền khai thác ổn định (6% – 8%/năm) nên được nhiều khách hàng tin dùng. Đặc biệt, Habitat Giai đoạn 3 với hệ tiện ích cao cấp nhất trục Đại lộ Bình Dương: Khu tiện ích 4000m2, công viên cây xanh, hồ bơi dài 50m chuẩn Olympic, xông hơi, nhà trẻ hiện đại,…sẽ là nơi an cư tuyệt vời cho những gia đình trẻ hiện đại tại đây.

PHÁP LÝ DỰ ÁN THE HABITAT (***)
Dự án căn hộ Habitat Bình Dương đã có đẩy đủ giấy phép xây dựng, giấy phép đủ điều kiện mở bán và đã bàn giao căn hộ (Tổng 11 block).
- Giai đoạn 1 & 2: Đã cấp sổ hồng.
- Giai đoạn 3: Ký HĐMB (Mới bàn giao 2025) – Chuẩn bị làm sổ.

PHÍ QUẢN LÝ KHU CĂN HỘ THE HABITAT VSIP 1
* Phí quản lý Giai đoạn 1&2 The Habitat:
- Phí quản lý: 12 nghìn/m2/tháng.
- Phí gửi xe oto: 900 nghìn/tháng (Bên trong), 550 nghìn/tháng (Bên ngoài).
- Phí gửi xe máy: 110 nghìn/tháng.
* Phí quản lý Giai đoạn 3 The Habitat:
- Phí quản lý: 17 nghìn/m2/tháng.
- Phí gửi xe oto: 900 nghìn/tháng.
- Phí gửi xe máy: 220 nghìn/tháng.
Note: Phí quản lý đã bao gồm VAT, và được sử dụng Free toàn bộ tiện ích nội khu: Hồ bơi, Gym, xông hơi,…
GIÁ THUÊ CĂN HỘ HABITAT BÌNH DƯƠNG
The Habitat là căn hộ liền kề Aeon Mall Bình Dương, mặt tiền Quốc lộ 13, đặc biệt nằm đầu khu VSIP1 nên được nhiều chuyên gia nước ngoài lựa chọn sinh sống từ 2017 đến nay rất đông. Chính vì vậy, nên căn hộ The Habitat tạo nên giá trị cho thuê cực kỳ tốt tại thị trường Bình Dương. Sau đây, là giá cho thuê căn hộ The Habitat mới nhất:
Giá thuê căn hộ The Habitat Giai đoạn 1-2:
- Giá thuê loại 2 phòng ngủ (61m2 – 80m2): 7 – 12 triệu/tháng.
- Giá thuê loại 3 phòng ngủ: 12 – 15 triệu/tháng
Giá thuê căn hộ The Habitat Giai đoạn 3:
- Giá thuê 1 phòng ngủ (54-55m2): 8 – 8.5 triệu/tháng.
- Giá thuê 2 phòng ngủ (67-69m2): 11 – 12 triệu/tháng.
- Giá thuê 2 phòng ngủ có bancong (74 – 84m2): 14 – 16 triệu/tháng.
- Giá thuê 3 phòng ngủ (96-99m2): 18 triệu/tháng.
VỊ TRÍ & KẾT NỐI DỰ ÁN THE HABITAT
Địa chỉ căn hộ Habitat Bình Dương: Số 8 Đại lộ Hữu Nghị, KCN VSIP 1, P Thuận Giao, Tp Hồ Chí Minh. Căn hộ The Habitat sở hữu có vị trung trung tâm Tp Thuận An cũ, nên thuận tiện đi lại nhiều nơi.

Sau đây, một số kết nối thuận tiện tại căn hộ Habitat VSIP 1 nhiều khách quan tâm:
- 2 phút: Tiếp cận đến Aeon Mall, Sông Bé golf resort, Trường Quốc Tế MM1.
- 7 phút: Di chuyển đến Bệnh viện quốc tế Becamex, Lotte Mart, Bệnh viện quốc tế Hạnh Phúc, Mega Market.
- 10 phút: Kết nối Chợ Lái Thiêu, Bệnh viện quốc tế Columbia.
- 15 phút: Đến Chợ Dầu Mới, Nâng Sân Thủ Đức.
- 30 phút: Tiếp cận Khu Đại Học Quốc Gia TP. HCM.
- 35 phút: Kết nối Sân bay Tân Sơn Nhất, Quận 1 TP. HCM.
GIÁ TRỊ KHU CĂN HỘ THE HABITAT CẠNH AEON MALL CANARY
- Vị trí đắc địa, trung tâm Tp Thuận An cũ, ngay cổng chào VSIP 1, cạnh Aeon Mall và đối diện sân Golf Sông Bé.
- Tiện ích đẩy đủ hiện đại bậc nhất tại khu vực, cụ thể: Hồ bơi dài 50m, khu công viên nội khu với cây xanh lớn, gym, spa, xông hơi, nhà trẻ,…
- Pháp lý đầy đủ và đã được bàn giao.
- Thanh toán chỉ 30% đã nhận được nhà để Ở hoặc Khai thác cho thuê có dòng tiền.
- 70% còn lại thanh toán giãn sau 18 tháng, 10%/3 tháng, không cần hỗ trợ bank.
- Ngân hàng hỗ trợ lên đến 70%, trong 40 năm, và ngân hàng giải ngân theo tiến độ dự án.

TIỆN ÍCH VƯỢT TRỘI DỰ ÁN THE HABITAT
Là căn hộ cao cấp theo tiêu chuẩn cho chuyên gia, căn hộ The Habitat Bình Dương có hơn 22 tiện ích thư giãn phục vụ cư dân:
- Hồ bơi vô cực với chiều dài 50m, hồ bơi trẻ em,
- Khu vui chơi trẻ em ngoài trời, khu tập gym/ yoga, vườn nhiệt đới, đường dạo bộ, công viên trung tâm, đồi cỏ Habitat, vườn BBQ,
- Quảng trường trung tâm… vui chơi giải trí cho cư dân thêm năng động.
- Trường mầm non,…

MẶT BẰNG VÀ THIẾT KẾ CĂN HỘ THE HABITAT
Dự án The Habitat Bình Dương được chia làm 3 giai đoạn, mỗi giai đoạn có thiết kế mặt bằng và loại hình căn hộ khác nhau.

Giai đoạn 1 & 2: Gồm 2 tòa tháp A1 và A2, cao 18 tầng.
- Căn hộ 2 phòng ngủ: diện tích từ 58.65m2 đến 79.18m2.
- Căn hộ 3 phòng ngủ: diện tích từ 103.32m2 đến 108.62m2.
- Căn hộ Dual Key (căn hộ kép): kết hợp 1 căn hộ 2 phòng ngủ và 1 căn hộ studio, diện tích 103.32m2.
MẶT BẰNG CĂN HỘ HABITAT GIAI ĐOẠN 1

MẶT BẰNG CĂN HỘ THE HABITAT GIAI ĐOẠN 2

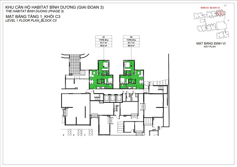
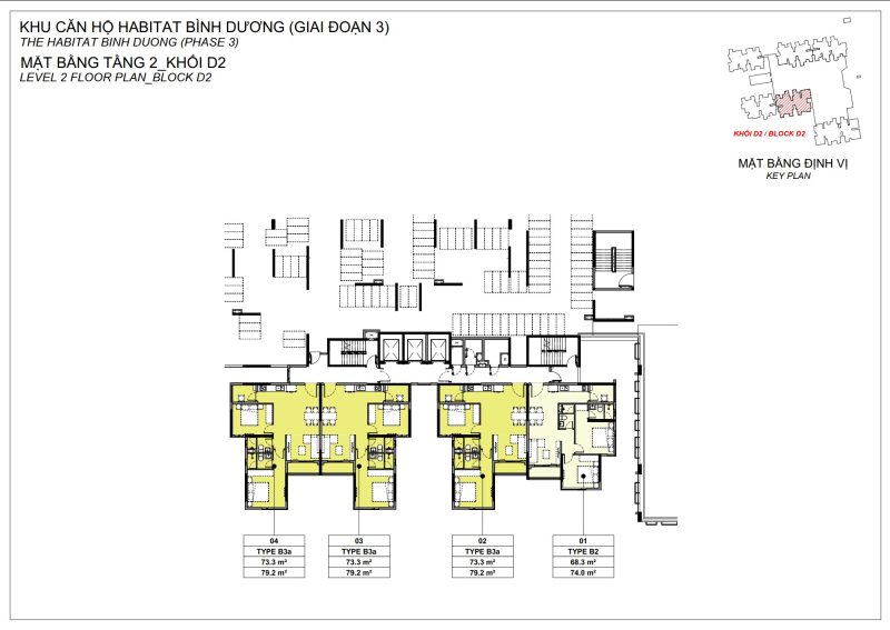
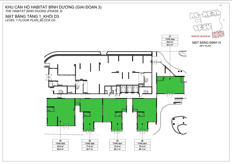
Giai đoạn 3: Gồm 6 tòa tháp, cao 16 – 18 tầng. Có 2 tầng hầm để xe. Công viên và hồ bơi được xây dựng ở tầng 3.
- 1 phòng ngủ (không có lô gia): 50m²
- 2 phòng ngủ (không có lô gia): 67 – 79m²
- 2 phòng ngủ (có lô gia): 74 – 83m²
- 3 phòng ngủ (có lô gia): 96 – 100m²


MẶT BẰNG TẦNG CĂN HỘ THE HABITAT GIAI ĐOẠN 3 BÌNH DƯƠNG
BLOCK C1 HABITAT GIAI ĐOẠN 3
BLOCK C2 HABITAT GIAI ĐOẠN 3
BLOCK C3 HABITAT GIAI ĐOẠN 3
BLOCK D1 HABITAT GIAI ĐOẠN 3
Insert slides here (UX Banner or Sections)
BLOCK D2 HABITAT GIAI ĐOẠN 3
BLOCK D3 HABITAT GIAI ĐOẠN 3
THIẾT KẾ CHI TIẾT CĂN HỘ HABITAT BÌNH DƯƠNG
THIẾT KẾ LOẠI 1 PHÒNG NGỦ HABITAT QUỐC LỘ 13
THIẾT KẾ LOẠI 2 PHÒNG NGỦ HABITAT QUỐC LỘ 13 (Không có bancong)
THIẾT KẾ LOẠI 2 PHÒNG NGỦ HABITAT QUỐC LỘ 13 (Có bancong)
THIẾT KẾ LOẠI 3 PHÒNG NGỦ HABITAT QUỐC LỘ 13
GIÁ BÁN CĂN HỘ THE HABITAT GIAI ĐOẠN 3 CHÍNH THỨC CĐT
Sau đây, là giá bán căn hộ The Habitat giai đoạn 3 mua trực tiếp từ chủ đầu tư, thanh toán 30% nhận bàn giao nhà. Giá bán Habitat cạnh Aeon Mall Bình Dương năm 2025:
- Giá bán căn hộ Habitat loại 1 phòng ngủ (51m2 – 55m2): 1.9 tỷ – 2.1 tỷ/căn
- Giá bán căn hộ Habitat loại 2 phòng ngủ, 2 Wc (loại 67 – 71m2): 2,6 tỷ – 3.2 tỷ/căn
- Giá bán căn hộ Habitat loại 2 phòng ngủ, 2 Wc (loại 79 – 83m2): 3.4 tỷ – 3.8 tỷ/căn
- Giá bán căn hộ Habitat loại 3 phòng ngủ, 2 Wc (loại 86 m2): 3.8 tỷ – 4.2 tỷ
- Giá bán căn hộ Habitat loại duplex (122m2 – 130m2): 6 tỷ – 6.6 tỷ/căn.
PHƯƠNG THỨC THANH TOÁN HABITAT BÌNH DƯƠNG
- Thanh toán 30% nhận bàn giao nhà, 70% thanh toán theo tiến độ 18 tháng sau.
HÌNH ẢNH BÀN GIAO CĂN HỘ THỰC TẾ HABITA BÌNH DƯƠNG









LIÊN HỆ
PHÒNG KINH DOANH DỰ ÁN THE HABITAT BÌNH DƯƠNG
|Hotline: 0965 588 584
|Email: aqland.vn@gmail.com
Chân thành cảm ơn Quý anh/chị khách hàng quan tâm khu căn hộ Habitat Bình Dương!


































































































