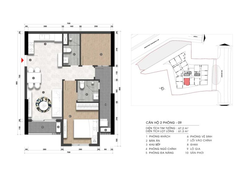
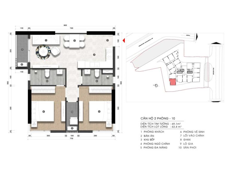
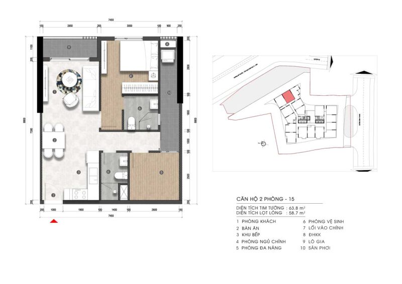
MẶT BẰNG HONAS RESIDENCE DĨ AN CHI TIẾT
Honas Residence Dĩ An là căn hộ giá rẻ liền kề Làng đại học Quốc gia Thủ Đức. Dự án được đầu tư bởi Hoàng Nam Group, xây dựng được đảm bởi đơn vị xây dựng Uy tín: An Phong và bàn giao nội thất chất lượng. Nên Honas Residence mới bàn giao đã được nhiều khách hàng quan tâm và quyết định lựa chọn.

Mặt bằng căn hộ Honas Residence được thiết kế hợp lý và đa dạng diện tích (1 phòng ngủ – 2 phòng ngủ: 45m2 – 69m2), nên giá chung cư Honas Residence cũng khá hợp lý (Từ 1.4 tỷ – 2.2 tỷ/căn). Đặc biệt, chủ đầu tư Hoàng Nam ra chính sách đặc biệt chỉ thanh toán 10% nhận nhà, còn lại thanh toán giãn 36 tháng không phát sinh gì thêm. Chiết khấu vượt thanh toán nhanh lên đến 9%.
MẶT BẰNG CHI TIẾT CĂN HỘ HONAS RESIDENCE
Mặt bằng dự án Honas Residences được xây dựng trên khuôn viên đất rộng gần 5000m2, gồm 1 block cao 29 tầng, 2 tầng hầm thông minh, và 476 căn hộ diện tích 1PN + (45.6– 59m2), 2PN (57.9- 69.1m2). Cùng với 8 căn shop tại khối đến Honas Residences, hội tụ nhiều dịch vụ để cung cấp đầy đủ các dịch vụ chất lượng cho cư dân tại đây.


THIẾT KẾ CĂN HỘ HONAS DĨ AN
Thiết kế căn hộ Honas Residence được chủ đầu tư thiết kế tối ưu công năng, tận dụng được không gian mang tới khả năng đón nắng và gió vào căn hộ tốt nhất. Đặc biệt, với thiết kế vừa phải như thế này nhiều khách hàng trẻ có ngân sách không cao có thể dễ dàng sở hữu cho mình 1 căn Honas Residences.
Diện tích thiết kế căn hộ Honas Residences cụ thể:

THIẾT KẾ CĂN HỘ HONAS CHI TIẾT
HÌNH ẢNH BÀN GIAO THỰC TẾ CĂN HỘ HONAS RESIDENCE DĨ AN








LIÊN HỆ
PHÒNG KINH DOANH DỰ ÁN HONAS RESIDENCE HOÀNG NAM
|Hotline: 09139 110 112
|Email: aqland.vn@gmail.com

















